牛年已然到来,在这样特别的时刻,你是否已经给自己许下一个新年愿望,比如说,在厦门买套房子。
那么,今年的厦门市场是否有大看头?
是的,接下来一批纯新房排队入市,厦门新房市场又要热闹起来了。
如果说2020年是刚需红盘的神仙打架,那2021年基本上是改善盘的巅峰对决。
这些纯新盘,不是占据主城绝版地段,就是拥有城市稀缺资源,又或是项目有足够的产品表现力,总之缺点可能就只有“贵”了。
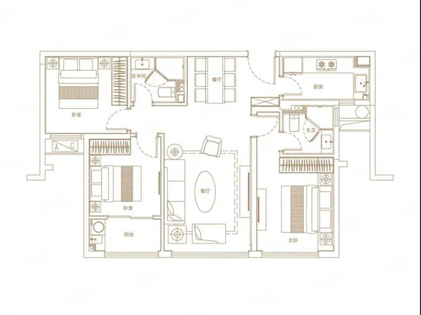
中骏天荟
中骏天荟,中骏厦门第六座天系作品。

项目占地面积约20423㎡,规划建筑面积约96680㎡,规划有8栋22~25F高层,总共规划户数约498户,主力户型为108-166㎡3-4房,带装修交付。

108㎡3房

118㎡4房

138㎡4房

166㎡4房
项目位于吕岭路与云顶中路交叉口东南侧,周边交通便利,紧邻地铁2号线蔡塘站,同时蔡塘站也是BRT快1、快2线与地铁2号线的交汇站点,地理位置优越。
在享有便捷的交通,还拥有不错的教育配套和医疗资源:华东师范大学希平双语高级中学、蔡塘学校、逸夫中学、莲前小学等;厦门市口腔医院、厦门大学附属心血管病医院、弘爱医院、复旦中山医院等。
休闲商圈更是不用说,项目东侧为蔡塘广场,附近还有加州商业广场、瑞景商业广场、宝龙一城等,西侧紧邻忠仑公园,附近还有湖边水库公园可为居民提供娱乐休闲极佳去处。
旭辉铂悦·五缘湾上
旭辉铂悦·五缘湾上是旭辉在全国的第18座铂悦,打造厦门岛心奢邸,整个项目仅300套房源。

项目位居位于湖里区高林中路与高林南路交叉口西南侧,居厦门本岛东北部,地处五缘湾片区内。

五缘湾片区经过多年的开发建设,生态环境与公建配套持续提升,目前已成为厦门岛内唯一集水景、温泉、植被、湿地、海湾等多种自然资源要素于一体的生态空间,是厦门岛内宜居度最高的优质片区之一。
更赞的是,铂悦系,是旭辉精工品质与高端产品的标签之一,不仅拥有国家注册商标,更是屡获殊荣,是市场、客户极度认可的改善封面。
接下来,旭辉铂悦·五缘湾上会给大家呈现出怎样的人居新版图,让我们一起期待!
公元九里
公元九里是华润置地在洞悉2023年厦门新格局,布局在福建的首个“九里系”作品,也是华润置地厦门第六子。

项目靠近新会展中心,总建筑面积为113600㎡,占地面积为39193.830㎡,共规划13栋楼高层洋房,户型为建面63-127㎡2-4房,带装修交付,其位于万象城B2楼中庭的线下展厅也已对外开放。






周边除了新城规划的酒店、商业街、教育等之外,附近还规划有龙湖时代上城、首创奥特莱斯等多个商业综合体;厦门大学附属翔安医院已正式建成投用;东界小学、双十中学翔安校区高中部等教育资源;翔安隧道口、第二通道(预计2022年完工)2条进岛通道,及3、4号线等多维交通,一旦全部建成,其价值可想而知。
特别是新城内的新体育馆将作为2023年亚洲杯的主体育馆之一,这也意味着该板块的建设速度将有一定的保证。
保利中交雲上
保利中交雲上位于翔安区刘五店滨海东大道与东界路交叉口东侧,地处东部体育会展新城内。
项目用地面积56238.54㎡,建筑面积235171㎡,总投资54亿。

当下,项目周边的教育配套正不断完善当中,目前周边已有东界小学、刘五店小学、刘五店中学、双十中学翔安校区高中部(在建)等学校,社区内部自带不小于4300㎡的12班幼儿园。
不止于此,项目所在新城内还规划建设多所九年一贯制学校、小学、初中等教育配套,届时片区内教育配套水平将得到极大的提升。
除此之外,还可享受众多高量市政、交通、商圈、自然生态等配套。
建发悦府
建发悦府位于厦门市翔安区舫阳西三路与舫山北二路交叉口西北侧,项目总投资88000万,总建筑面积为53960㎡,占地面积为12320.71㎡,规划总户数为396户。

项目户型规划建面88-106㎡,其中洋房户型建面88-98㎡,高层户型规划88-106㎡。

88㎡3房

98㎡4房
项目交通配套,交通路网较发达,自驾可快速通往各地。

在享有便捷的交通,还拥有不错的教育配套(翔安第一中学、马巷中心小学舫阳校区、)和医疗资源(厦门市第五医院、马巷卫生院等)。
除此之外,项目周边各类商业设施较为聚集,除了沿街商铺、社区底商之外,还分布有新华都购物广场、翔安商业广场、马巷商城等中型购物中心,可满足居民日常生活所需。
海晟大学府
海晟大学府比邻厦大翔安校区、省级风景名胜香山公园,东侧规划建设厦大附属翔安实验学校,项目建筑面积112830㎡、占地面积35826㎡,户型建面为106-143㎡3-4房。






项目于2019年7月开工,2020年5月完成基础及地下室结构,2020年12月26日下午,随着7#楼最后一车混凝土的浇筑完成,海晟X2018P01项目顺利完成主体结构全面封顶。

眼下,项目周边不经享有多样化的交通出行,商服配套也很不错,厦大学生街、汇景商业广场、在建的奥特莱斯、闽篮城市广场等都在短车程范围内,日常娱乐休闲购物不用愁。

除此之外,项目周边的医疗资源配备也不错,近距离享有厦门大学附属翔安医院;此外明松生态园、沙美公园等休闲景观也在项目附近。
中粮鹭湾祥云
中粮鹭湾祥云位于环东海域翔安片区,目前项目已封顶、外立面已落架,前身为2017XP07地块,于2017年9月被中粮以总价15.41亿、楼面2.84万/㎡竞得。

在交通上,项目坐拥一隧多桥立体交通网络,不仅将集美、同安、翔安三区连成一片,入岛可选的路线多样化,组成超便利交通网络。
特别是预计2021年底完工的滨海东大道全线通车后,项目进岛的时间将大大缩短,经翔安大桥直达岛内。
当然,项目教育资源也是十分丰富,项目与岛外最大的九年制学校翔安火炬实验学校仅一路之隔,周边还有幼儿园、海滨小学等教育圈傍身。
不止于此,环东海域新城已开工或处于前期阶段的拟新建教育项目47个,未来这里的教育版图迎重大升级。
禹洲海墅
禹洲海墅位于同安环东海域·滨海西大道与通福路交汇处,项目囊括叠墅、复式、平层,定鼎环东瞰海人居新标杆。

项目占地1.88万方,建面6.74万方,规划2栋高层和4栋叠墅,规划户数390户,高层为92㎡3房复式,叠墅户型为115-135㎡3-4房。其营销中心暨复式样板已对外开放。

92㎡复式:一层

92㎡复式:二层
目前1号楼92平复式和3号楼叠墅正在预约中,除此之外,项目外立面已经呈现,预计将于2022年6月交房。
中旅海上城
中旅海上城已于日前招标,预计近期开工,7月可达预售条件 。
其前身为J2020P01地块,于2020年7月被港中旅以总价19.55亿,楼面价26401元/㎡斩获。
项目位于集美大桥出岛方向下桥口附近,可实现快速进岛,地块临近BRT快1线东安站,1.5公里设有地铁6号线霞梧站,未来可近享轨道交通红利,具备完善的交通路网通达岛内外。

不仅交通便利,周边的其他配套也是相当成熟,美山小学、美山中学、乐海小学、集美中学等学校就分布在地块附近;厦门第二医院、川大华西厦门医院(在建)和环东海域医院(在建)等医疗资源也在逐步完善中。
另外,项目前方就是滨海旅游浪漫线,附近还有集美学村、鳌园等,其周边商圈配套十分丰富(新华都、银泰百货、集美万达等),可为居民提供吃喝玩乐购。
中海厦门东湾
中海厦门东湾,位于集美区滨海西大道与东安路交叉口西南侧,主推建面87-143㎡户型,项目SM二期城市展厅已于昨日盛大开放。

中海厦门东湾前身为J2020P02地块,于2020年9月被中海以总价18.2亿、楼面价26903元/㎡竞得,其和中旅海上城地段相同,配套共享,这边我们就不在一一赘述了。
盘点完毕,接下来我们就静待这些楼盘在今年的表现吧,看看到底能给到惊喜还是其他!
null
网友评论
共有条评论, 人参与